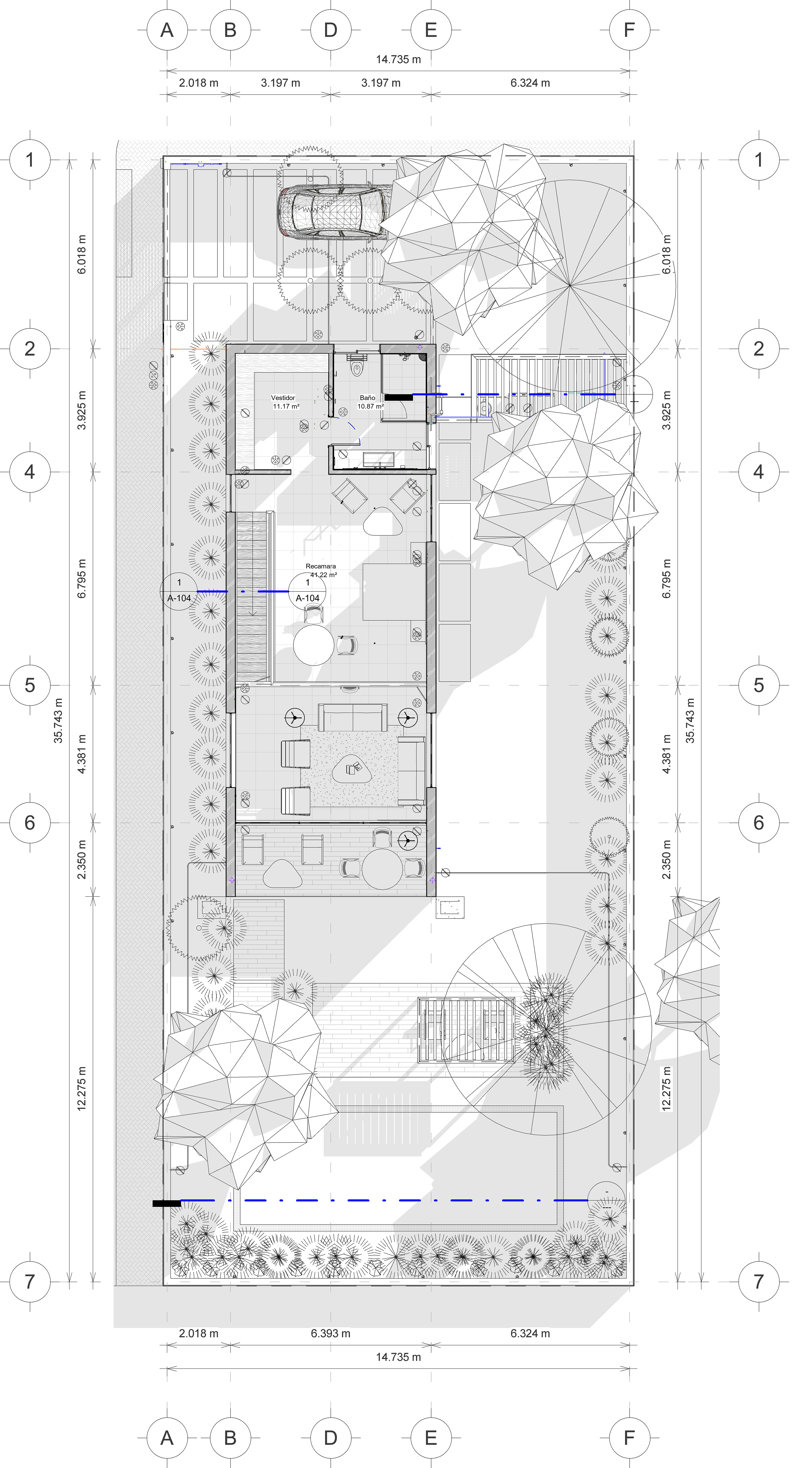
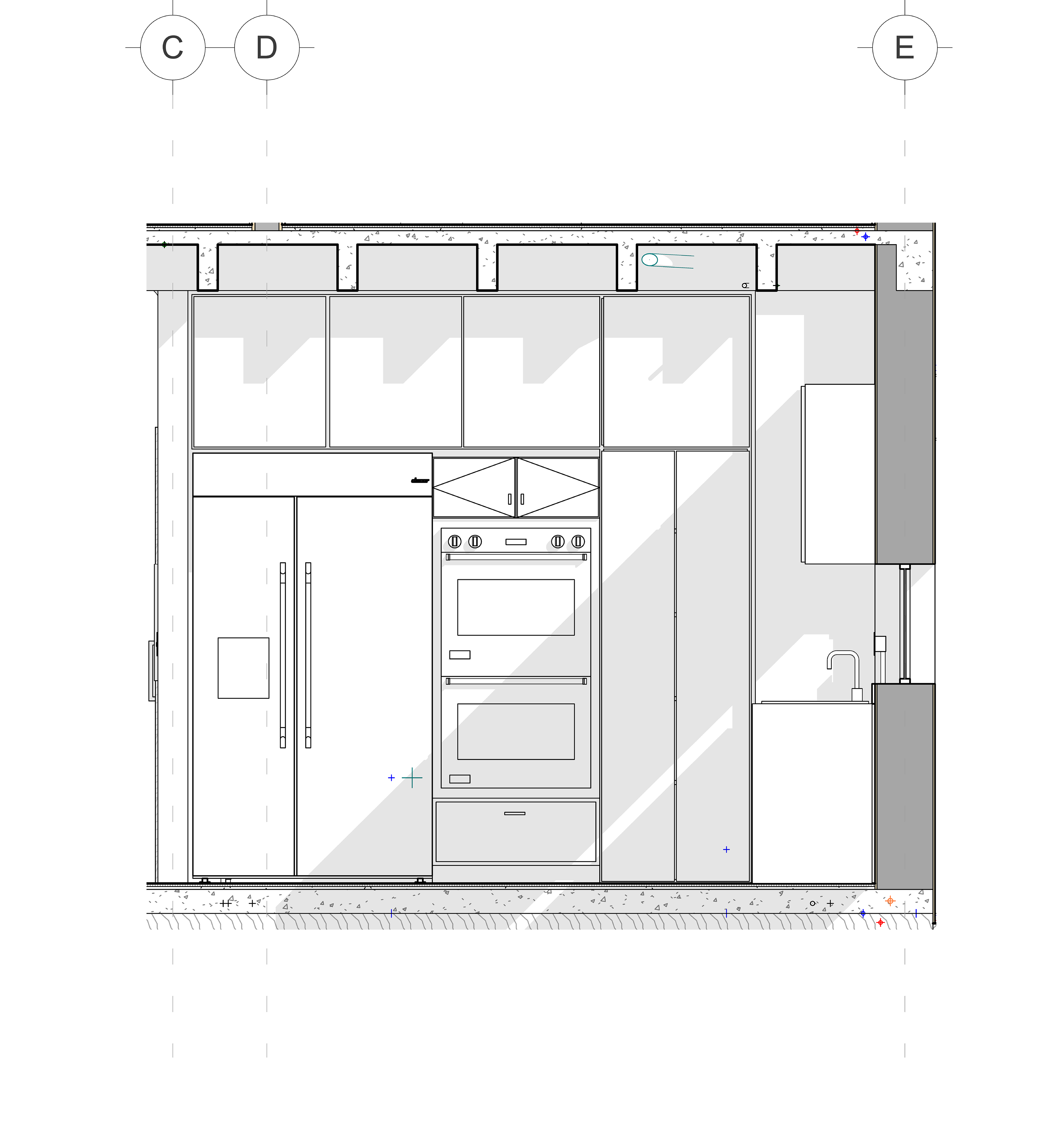
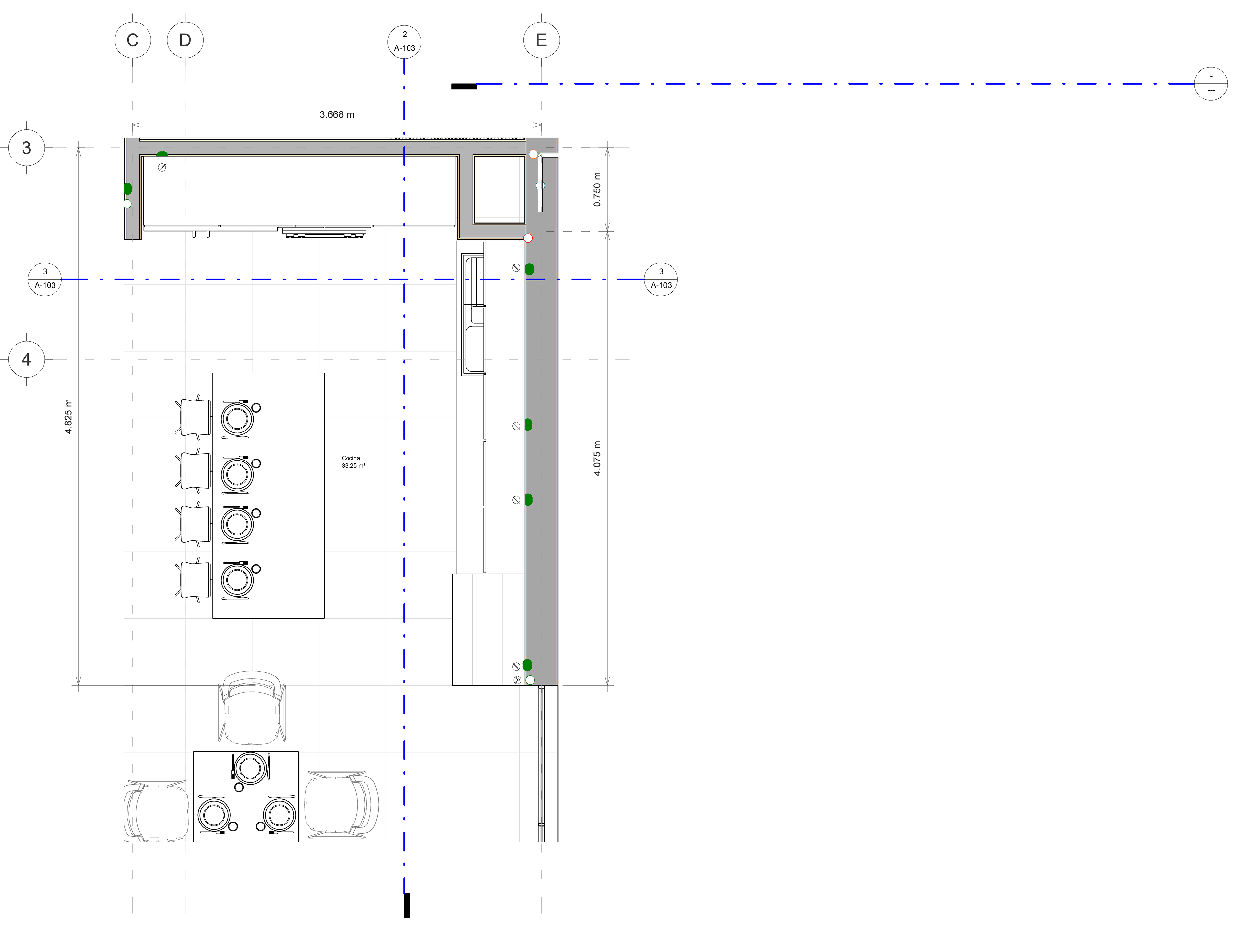
Design and BIM Modeling: Autodesk Revit
COOKIE CONSENT. We use our own and third-party cookies. If you continue browsing, we consider that you accept the use of cookies. Más info Aceptar Rechazar